As casas de madeira são uma ótima opção de construção para os dias atuais. Além de contribuírem para a preservação do meio ambiente e para uma vida mais saudável, elas proporcionam uma sensação diferente das residências de alvenaria tradicionais. Costumam ser mais aconchegantes e transmitem tranquilidade.
Sendo um tipo de imóvel muito utilizado em épocas passadas, no Brasil, a casa de madeira acabou perdendo espaço para as de alvenaria, com o passar do tempo, devido a vários fatores.
Porém, projetos arquitetônicos mais recentes têm colocado essa matéria-prima de volta no cenário, aparecendo como uma das principais tendências em imóveis.
Projetos de casas de madeira construção de residências é mais comum em fazendas, sítios e outros tipos de habitação no campo, mas nada impede que sejam construídas nas cidades, como acontece nos projetos de casas americanas e em outros países.
Construção das Casas de madeira: Cuidados iniciais
As plantas de casas de madeira com 4 quartos, por exemplo, consistem em projetos que facilitam a construção de imóveis, trazendo a quantidade de cômodos, o tamanho de cada ambiente, a divisão entre eles e a organização do espaço, entre muitas outras informações relevantes.
Mas se você pretende investir em uma construção ecologicamente correta como essa, deve prestar atenção a alguns detalhes. Antes de pensar em construir uma casa de madeira, analise o terreno e veja se nele não há relevos.
Em caso de terrenos com relevo, construa um alicerce bem alto para deixar a estrutura da casa mais plana. É bom também verificar a procedência do material utilizado na construção, para não correr o risco de adquirir madeira de desmatamento ilegal.
É muito importante considerar a procedência da madeira para garantir que a sua obra seja a mais sustentável possível, evitando qualquer tipo de contratempo.
Benefícios e malefícios das Casas de madeira
Consideradas construções sólidas e confiáveis, os projetos de casas de madeira são muito acolhedoras e remetem ao passado, agradando principalmente a quem gosta de decoração rústica. Uma das principais vantagens das casas de madeira está na beleza, fazendo com que elas sempre chamem a atenção.
Além disso, elas têm um custo menor que o das casas de alvenaria, principalmente se a escolha for uma casa pré-moldada, modelo que dispensa o uso de cimento, tijolos e tintas, entre outros materiais, podendo resultar em uma economia que chegue a mais de 50%.
Confira outros benefícios das casas de madeira simples e baratas:
- Menor tempo de construção (algumas construções podem ser erguidas em dias);
- Oferece um ótimo isolamento térmico e acústico;
- Têm grande durabilidade (dependendo da qualidade da madeira e outros fatores, a casa pode ficar de pé por centenas de anos);
- Evitam o acúmulo de pó, graças às propriedades eletrostáticas da madeira;
- Se adaptam facilmente a qualquer clima e diferentes temperaturas.
Entretanto, é preciso destacar também algumas desvantagens das casas de madeira, como os cuidados com a manutenção. Elas devem receber uma atenção especial, para ter maior durabilidade e resistência.
Além disso, elas não são recomendáveis para regiões que sofrem com enchentes, deslizamentos e outros desastres naturais, pois a madeira pode não oferecer a estabilidade necessária para tais situações.
Os ruídos típicos da madeira, ao pisar em certas partes ou abrir portas e janelas, também podem ser um incômodo.
Plantas de Casas de Madeira – Veja projetos de casas de madeira
Agora, vamos a alguns modelos de plantas de casas de madeira, que você pode usar de inspiração para o seu projeto! Lembre-se de que além de escolher a sua planta casa de madeira, você também deve considerar a contratação de um arquiteto, ok? Assim os resultados serão seguros e efetivos.
Vamos às inspirações? Acompanhe abaixo.
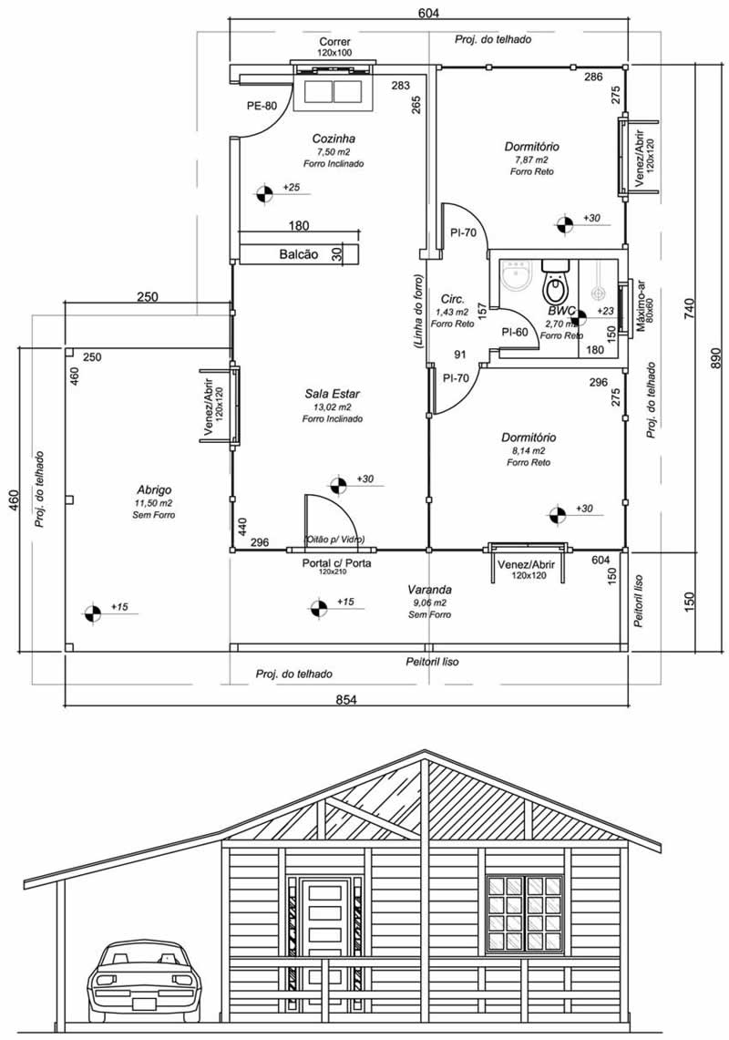
Plantas de casas de madeira com 2 dormitórios
Nesta imagem, vemos uma planta de casa de madeira bem simples. Contém apenas dois dormitórios, sala, cozinha, banheiro e uma varanda. O telhado se estende até a varanda, formando uma cobertura.
Casa de Madeira com Cômodos Grandes
Essa casa é uma boa opção para ser construída como casa de campo com cômodos grandes, para passar o fim de semana. Se preferir, você pode usar o modelo para uma casa urbana, não há nenhuma restrição.
Quitinete de madeira
Essa outra imagem de plantas de casas de madeira nos mostra um imóvel ideal para um casal ou até mesmo um casal com filhos. Vemos que a madeira foi utilizada também no chão.
Sobrado de Madeira
Na planta de sobrado de madeira, percebemos que o imóvel é grande e possui vários cômodos. Vale a pena analisar e quem sabe construir um modelo parecido com este.
Casa Grande de Madeira – veja plantas de casas de madeira com 4 quartos
Aqui, temos um modelo de planta de casa grande de madeira, perfeita para quem deseja construir uma residência maior, para comportar várias pessoas.
Casa de Madeira com Sótão
Agora, temos o exemplo de uma plataforma de casa pré-moldada. Se preferir, você poderá usar a plataforma com outro material, como o cimento.
Plantas de Madeira Simples
Por fim, temos quatro opções de plantas de casas simples de madeira, que se encaixam em diferentes situações. Em uma delas, a casa é feita com madeira pré-moldada.
Construindo uma casa de madeira
Antes de construir uma casa de madeira, pesquise os materiais a serem usados. Algumas construtoras oferecem casas pré-moldadas. Esse sistema facilita que a casa seja construída em até sete dias.
Caso não se identifique com nenhuma das plantas acima, procure um engenheiro, ele auxiliará na construção da casa dos seus sonhos. O engenheiro também é útil no processo de registro do imóvel (ele precisa assinar o projeto para que o imóvel seja registrado na prefeitura de sua cidade).
Cuidados com a manutenção da madeira
A manutenção da casa de madeira é essencial, como dissemos acima, se você quiser que o imóvel dure bastante e se mantenha com um belo visual. Para começar, o proprietário deve tratar o solo do terreno antes de iniciar as obras, para evitar a infestação de cupins.
Para manter a casa bem cuidada, é necessário que ela receba um tratamento especial, tanto interna quanto externamente, com o uso de verniz para revestir a madeira, a cada três ou quatro anos.
Verificar o estado da madeira é outro cuidado constante.
Esperamos que este conteúdo tenha sido útil para a sua inspiração. Agora é hora de fazer o seu plano e colocar a mão na massa. Boa obra para você!





28 Comentários
planta para uma casa dos meus sonho com aminha familia e para os meus filhos
Oi,agente tem um pequeno terreno gostaria de fazer uma pequena casa de madeira,bem simples e, queremos gastar pouco.que seria a ideia,e só pra passar final de semana.
Ola amigo…tenho uma construtora e faço esse tipo de casa…se tiver interesse chama no watts 49 991895312
Olá gostaria de construir uma casa de madeira sobre a laje de minha casa. Quais os passos iniciais para uma visita do engenheiro da empresa e assim darmos andamento? Muito obrigada.
Como faço para iniciarmos um orçamento de uma casa de madeira sobre minha laje?
qual valor da primeira planta com 50m e uma atia de 15m
amigo,me informa qual a melhor madeira para construir com madeira roliça.
Gostaria de saber o valor de uma casa de 2 quartos sala e cozinha 1 banheiro sem garagem
Porque quero fazer esta casa em cima de um salão comercial ok aguardo
Boa tarde. Gostaria de saber quanto fica uma casa com 75.24 m2.
Bom dia. seria possivel comprar esses projetos de casa de madeira com seus orcamentos e relacao dos materiais nnecessarios? grato.
tenho um terreno 6metros 4 oque sera que da para fazer? quero 2 quartos sala junto com a cozinha e banheiro
Gostaria d fazer no quintal da cs da minha mae como começo?e nao tenho muita condições no momento To d aluguel mas nao To conseguindo pagar
Ola linda as casa;
Gostaria de um auxilio estou com projeto de construir no meu terreno queria saber si eu enviar os dados do local com as ruas e fotos do terreno é possível me enviar uma orçamento médio com projeto e construção de varias casinhas em 02 terrenos.
Tenho as madeiras para cortar (angico) pois moro no sítio. Então, como escolher um profissional para fazer este serviço desde o corte das árvores ( corte com este fim) até a construção final. Quero fazer uma de 02 dormitórios, cozinha e varanda. Será que um bom marceneiro saberia fazer? obrigado!
Quero saber quanto custa uma casa com três quartos sala cozinha banheiro área de serviço garagem de72metros quadrados é um terreno de fundos poderia ser de dois andares, preciso de valores.
QUERO SABER O NÚMERO DE TELEFONE PARA EU ME MANTER INFORMADA
Gostaria de saber o orçamento de uma casa com 3 dormitórios, 2 banheiros , sala cozinha . Tipo 70 metros de construção
Olá gostaria de saber o custo de uma casa de
Madeira de +ou – 130 m2 , com 2 pisos,
Sendo o piso inferior , cozinha, salas de jantar e estar, ambientes integrados. No piso superior 4 quartos, ou dependo o valor 4 suítes.
Mais um detalhe, gostaria que tivesse bastante vidros Em volta, uma casa clara.
Quero ter noção do valor do m2
GOSTARIA DE CONSTRUIR UMA CASA PRÉ FABRICADA EM CIMA DE UMA JÁ EXISTENTE EMBAIXO, UMA CASA SIMPLES COM SALA E COZINHA TIPO AMERICANA, COM UM BANHEIRO E DOIS QUARTOS E SE POSSÍVEL UMA VARANDA NA LATERAL PEGANDO DESDE A SALA E PASSANDO PELAS JANELAS DOS QUARTOS. PRECISO DE VALORES PARA SABER SE COMPENSA.
Gostaria de um orçamento de uma casa pré moldada de 96m2 com 2 banheiros em são José dos pinhais Paraná
[…] primeiro modelo de casa pré-moldada que temos é essa imagem abaixo. É uma casa pré-moldada construída com madeira, diferente, simples e rápida de ser […]
[…] Afinal de contas, quem nunca teve a casa repleta de asas de cupins pelo chão? Agora, se sua casa for de madeira, aí o problema é ainda pior. Afinal, não são somente as asas que incomodam. É a deterioração […]
bom dia !
quanto custa uma casa , com aproximadamente 70 m2 de area interna , porém com 2 banheiro e area externa de aproximadamente 25m2. sem garagem e com piso de revestimento de cerâmica.
gostaria de saber valores de uma casa sendo 3 quadros no andar superior e em baixo 1 quarto , com as demais pendencias e varanda lateral
Bom dia , Gostaria de um orçamento desse sobrado de madeira que vocês apresentaram no site , Sobrado Europa de 147,95 metros quadrados .
Att
Eu. Gostaria. De. Saber. Quais. E. O. Presso. Para. Fazer. Uma. Casa. De. Madeira. Com. Um. Carto. E. Um. Banheiro. E. Uma. Varanda
Boa noite gostaria de saber o ZAP para contato orçamento